¿Cuánto cuesta remodelar un departamento en Buenos Aires en 2026? Precios reales por m2 y guía completa
En febrero de 2026, el costo de una remodelación integral de departamento en Buenos Aires (CABA) va desde 1.500.000 ARS/m² + IVA con un arquitecto independiente, hasta 1.830.000 ARS/m² + IVA con un servicio llave en mano que incluye personal en blanco, ART, seguro de responsabilidad civil y garantía legal. En esta guía desglosamos precios reales de un caso concreto de 52 m², comparamos las distintas modalidades de contratación y explicamos qué riesgos asumís en cada una.
El autor es ingeniero civil matriculado en el CPIC.


Introducción
Una remodelación integral no es una obra menor. Implica remover gran parte de lo existente – incluso tirar abajo paredes o ampliar puertas y ventanas - para transformar el espacio siguiendo un diseño a tu medida y acorde a tus gustos y preferencias. Además, es la inversión que más revaloriza tu departamento en CABA - hasta un 50% más de valor según especialistas del rubro inmobiliario.
En este artículo te mostramos precios reales a febrero 2026 de un caso concreto de remodelación integral de un departamento de 52 m² en Capital Federal, con todos los detalles desglosados, para que puedas estimar el monto total de tu inversión.
Además, te explicamos las diferentes formas de trabajo que existen en el mercado y te contamos cómo trabajamos nosotros. Fundamentamos las razones de por qué un servicio formal, con personal en blanco y asegurado y jefe de obra matriculado marca una diferencia enorme en tranquilidad y resultado final para el propietario.
Factores que influyen en el precio de remodelar un departamento en Buenos Aires
El costo varía según varios factores importantes:
Superficie y estado actual del departamento
Alcance de la obra (integral, solo cocina y baños, etc.)
Calidad de los materiales (gama media, alta o premium)
Inclusión de diseño profesional y dirección técnica
Tipo de contratación: informal vs formal
Lo más conveniente siempre será un presupuesto personalizado. En este artículo asumiremos un caso real, quizás algo más grande que el departamento promedio de la Capital Federal pero que igual sirve como referencia para que luego puedas comparar con el que estas analizando.
Caso real: Remodelación integral de departamento de 52 m² en CABA (febrero 2026)
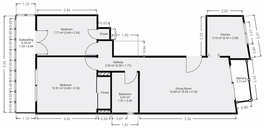
Tomamos como ejemplo un departamento de 3 ambientes de 52 m² (48 m² cubiertos + balcón), de unos 50 años de antigüedad, ubicado en Capital Federal. En este link podes ver un modelo 3D del departamento actual.
Alcances principales de la obra:
Instalaciones nuevas de electricidad, gas, agua y desagües (con profesionales matriculados)
Reemplazo de aberturas por DVH de aluminio
Cocina y baños completamente nuevos
Pulido y plastificado de parquet original
Pintura completa, cielorrasos, automatización de cortinas, puerta de living con herrería y más.
Y con esta distribución en planta:


Algunas fotos del departamento modelo (clic para agrandar)










Precios orientativos a febrero 2026. El valor final depende de los materiales y especificaciones de tu caso. Siempre trabajamos con presupuestos cerrados y sin sorpresas. La inversión estimada incluye los servicios de RenovArqui y los gastos del cliente, como materiales de terminación y subcontratos especialistas.
En esta tabla resumimos quién se responsabiliza por cada item, para cada propuesta disponible en el mercado, una valoración subjetiva sobre los riesgos y responsabilidades en la obra y un precio por metro cuadrado para cada alternativa.
En resumen, para un departamento de 52 m² en CABA a febrero 2026: contratar un arquitecto independiente cuesta entre 1.350.000 y 1.550.000 ARS/m² + IVA; el servicio de RenovArqui Proyecto y Dirección, 1.600.000 ARS/m² + IVA; y el servicio Llave en mano, 1.830.000 ARS/m² + IVA. Solo la opuesta Llave en mano incluye garantía legal, personal en blanco y baja responsabilidad del cliente ante riesgos.
¿Por qué elegir un servicio formal con personal en blanco y asegurado? ¿Por qué no conviene contratar de forma informal aunque parezca más barato?
Si el personal no cuenta con ART o seguro de accidentes personales → si hay un accidente, el dueño responde con su patrimonio. No olvides que el propietario es el responsable por todo lo que ocurra en su propiedad.
Si no tenés un seguro de Responsabilidad Civil → cualquier daño al vecino o consorcio lo pagás vos.
Si el personal no cuenta con contribuciones sociales → riesgo de multas + reclamos laborales millonarios. Como propietario, sos responsable solidario.
Calidad y plazos impredecibles. Una vez que empieza la obra, sos rehén de quién lleva adelante la obra. Mejor que sea alguien de confianza.
En nuestra propuesta "Llave en mano" de RenovArqui, todos nuestros colaboradores están en blanco, con aportes jubilatorios, ART y seguro de Responsabilidad Civil en el que vos sos beneficiario directo.
Esto significa:
Menor riesgo de multas laborales o reclamos de ARCA.
Si ocurre un accidente, no responde tu patrimonio personal.
Daños al vecino o consorcio: cubiertos por el seguro.
Equipo más comprometido y profesional.
Jefe de obra matriculado supervisando cada etapa y anticipándose a los problemas que pueden ocurrir.
Es cierto: pagás un poco más, pero comprás tranquilidad, tiempo y garantía real.
¿Vale la pena la inversión? Revalorización del departamento
Citando textualmente esta fuente, “si un departamento es a estrenar el valor del mismo es del 20% arriba del valor de la zona. Por el contrario, si el estado del mismo es malo, su valor disminuye en ese mismo porcentaje.” Asumiendo un caso extremo en el que se remodela integralmente un departamento en muy mal estado y se lo deja con prestaciones similares a las de uno a estrenar, se puede llevar su valor desde el 80% al 120% (un 50% más) del promedio equivalente del mercado. Obviamente, este es un caso extremo. En términos prácticos, podría estimarse una revalorización del 25%-30% luego de la remodelación.
¿Es una buena inversión? A febrero de 2026, el precio de cierre del m2 en Recoleta fue de 2.100 USD/m2 aprox., según reportes inmobiliarios. Con un tipo de cambio de 1.400 USDARS, el precio de venta real de un m2 rondaría los 3.000.000 ARS/m2 en Buenos Aires. Por lo que, según lo que vimos anteriormente, lo máximo que uno podría esperar de revalorización de mercado por remodelar, en promedio, estaría en el orden de 3.000.000 ARS/m2 x 0,25 = 735.000 ARS/m2.
En conclusión, el costo promedio de remodelar un departamento excede ampliamente su potencial revalorización. En términos financieros, no es una decisión conveniente. Para que lo fuera, los precios de las propiedades deberían subir, el costo de obra bajar u ocurrir ambos simultáneamente. En definitiva, la razón principal por la que un propietario haría una remodelación sería por ver mejorado su hogar, vivir en un lugar hecho a su medida y darse el gusto de usar su capital en mejorar su pasar y calidad de vida.
Preguntas frecuentes (FAQ)
¿Cuánto cuesta remodelar un departamento en Buenos Aires en 2026 por m²?
Para una remodelación integral, el valor mínimo aproximado es de 1.500.000 + IVA. Para un servicio llave en mano, el valor aproximado es de 1.830.000 ARS/m² + IVA por todo concepto.
¿Es mejor contratar de forma informal para ahorrar dinero?
No lo recomendamos. Los riesgos legales, de accidentes y de calidad suelen terminar costando mucho más caro que la diferencia inicial.
¿Cuánto dura una obra de remodelación integral?
En un departamento de 50-60 m², aproximadamente 4 meses con buena planificación y sin demoras.
¿Puedo hacer solo cocina y baño primero?
Sí. Ofrecemos obras por etapas. Podemos empezar por las partes que más necesitás y continuar después.
¿Hacen presupuesto sin compromiso?
Sí, totalmente gratis y sin compromiso. Luego de tu contacto inicial, coordinamos una llamada breve para conocer tus necesidades. En base a las fotos y videos que nos compartas, coordinamos una reunión en tu departamento para profundizar en lo que buscás, hablar sobre lo que podemos hacer y qué presupuesto estimado de inversión te demandaría.
En RenovArqui y para nuestra propuesta Llave en mano, todas las cargas sociales, ART y seguros de responsabilidad civil están incluidos y el propietario es beneficiario.
¿Querés saber exactamente cuánto costaría TU departamento?
Solicitá tu presupuesto personalizado y sin compromiso. Te responderemos en menos de 24 horas.


