¿Cuánto cuesta remodelar un baño en Buenos Aires en 2026? Caso real con precios desglosados
Descubrí el costo real de una remodelación integral de baño en CABA (1,50 x 2,10 m) a precios de febrero 2026. Con servicio completo de obra, personal en blanco y asegurado, liderado por un jefe de obra matriculado. Planes a medida sin sorpresas.
El autor es ingeniero civil matriculado en el CPIC.
6 min read


Introducción
Remodelar un baño completo de 3,20 m² en un departamento de Capital Federal cuesta entre $12.500.000 y $16.100.000 ARS + IVA (a precios de febrero de 2026). Este monto incluye diseño integral, materiales y mano de obra con personal validado y asegurado, y un plazo estimado de 3 semanas. A continuación, te mostramos exactamente cómo se compone este presupuesto, qué incluye y qué no, y cuánto podrías ahorrar según el nivel de terminaciones que elijas.
Si estás pensando en renovar tu baño en Belgrano, Palermo, Recoleta, Caballito, Villa Urquiza u otro barrio de CABA, esta guía te va a servir como referencia concreta para planificar tu inversión y evitar sorpresas.
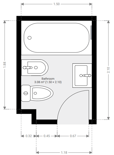
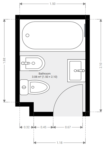
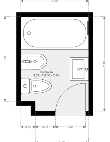
¿Qué baño estamos presupuestando? Caso real en CABA
Para que puedas comparar con tu situación, tomamos como referencia un caso real y frecuente: un baño con bañera de 2,10 x 1,50 metros (3,20 m²) en un departamento típico de CABA, con aproximadamente 50 años de antigüedad (construido entre 1975 y 1980). Es el tipo de baño que se encuentra en miles de departamentos de Belgrano, Palermo, Recoleta, Caballito y Villa Urquiza.




¿Qué incluye la remodelación integral del baño?
Nuestro servicio de remodelación de baño incluye diseño y ejecución completa. En nuestra propuesta Llave en mano, nosotros nos encargamos de toda la obra; el cliente solo compra algunos materiales de terminación. A continuación, el detalle de cada etapa:
Etapa 1: Demolición y retiro
Retiro de bañera, inodoro, bidet, lavamanos y botiquín existentes
Demolición completa de cerámicos de piso y paredes
Demolición de las instalaciones sanitarias originales
Retiro y limpieza de escombros
Etapa 2: Instalaciones nuevas
Nueva instalación completa de provisión de agua fría y caliente
Nuevos desagües cloacales
Reemplazo del bastidor eléctrico con nuevas llaves y tomas
Extensión de la conexión eléctrica al cielorraso para iluminación cenital
Etapa 3: Construcción y revestimientos
Nuevo contrapiso y carpeta de nivelación
Impermeabilización del sector de ducha
Colocación de porcelanatos de piso gama premium
Colocación de porcelanatos de paredes gama premium
Colocación de pastinas
Construcción de cielorraso suspendido de yeso (oculta instalaciones)
Etapa 4: Instalación de artefactos y terminaciones
Inodoro con mochila y bidet nuevos
Griferías gama premium
Vanity a medida (marca Silestone)
Bajo vanity de MDF + melamina
Mampara de ducha
Espejo y espacio de guardado en MDF + melamina
Llaves, tomas, tapas y apliques eléctricos en pared y cielorraso
Así quedaría tu baño: mockup 3D del diseño moderno
Este render muestra el resultado final del diseño para el caso que estamos presupuestando. Cada proyecto se diseña a medida según los gustos del cliente, por lo que el resultado final puede variar. Durante nuestro Proyecto Preliminar, te presentamos propuestas de diseño y terminamos con planos y vistas 3D, antes de iniciar la obra.


¿Qué ofrecemos y cuanto cuesta cada propuesta?
En esta tabla resumimos quién se responsabiliza por cada item, para cada propuesta disponible en el mercado, una valoración subjetiva sobre los riesgos y responsabilidades en la obra y un precio total para cada alternativa.
Estos valores corresponden a febrero de 2026 y contemplan un servicio profesional integral: jefe de obra matriculado, personal validado y asegurado, seguro de responsabilidad civil, y reportes semanales de avance.
En resumen, para un baño de 3,20 m² en CABA a febrero 2026: contratar un arquitecto independiente cuesta entre 11.730.000 y 13.260.000 ARS + IVA; el servicio de RenovArqui Proyecto y Dirección, 13.320.000 ARS + IVA; y el servicio Llave en mano, 16.080.000 ARS + IVA. Solo la opuesta Llave en mano incluye garantía legal, personal en blanco y baja responsabilidad del cliente ante riesgos.
Desglose de costos: ¿en qué se va la plata?
Para que entiendas exactamente a dónde va cada peso, dividimos la inversión en tres grandes bloques, según esta tabla:
El rango de +/- 15% en terminaciones se debe a las distintas calidades disponibles. Porcelanatos, griferías y mobiliario varían mucho de precio según marca y gama. Te asesoramos para que elijas la mejor relación calidad-precio según tu presupuesto.
¿Cuánto tiempo lleva remodelar un baño completo?
Para los alcances descritos, el plazo estimado de obra es de 3 semanas. Durante ese periodo, un jefe de obra matriculado supervisa todas las tareas y te mantenemos informado con un reporte semanal de avances.
Es importante tener en cuenta que el plazo puede variar según el estado original del baño, la disponibilidad de materiales de terminación y la complejidad del diseño elegido. En nuestra experiencia, la mayoría de las remodelaciones de baño en departamentos de CABA se completan dentro de este rango.
Contexto de precios: ¿cuánto cuesta remodelar un baño en Argentina en 2026?
Según datos de Reporte Inmobiliario (febrero 2026) publicados por La Nación, remodelar un baño de 3,75 m² en Buenos Aires cuesta alrededor de $8.276.934 solo por materiales y mano de obra básica. Sin embargo, este valor no contempla un servicio profesional integral con diseño, proyecto, jefe de obra matriculado ni garantías.
La diferencia entre contratar un servicio informal y uno profesional no solo se refleja en el resultado estético, sino en la seguridad jurídica (seguros + garantía según CCyCN), la calidad de ejecución (personal validado y asegurado) y la tranquilidad de un proceso previsible sin costos ocultos.
¿Qué incluye nuestro servicio que otros no?
Diseño integral personalizado: relevamiento, propuesta de diseño en planos y vistas 3D
Jefe de obra matriculado supervisa todas las tareas presencialmente
Personal validado y asegurado - ART/AP + seguro de responsabilidad civil. El propietario figura como beneficiario.
Reportes semanales de avance con fotos y detalle de próximos pasos
Presupuesto cerrado: sin costos ocultos ni sorpresas
Atención personalizada durante todo el proceso
¿Cómo es el proceso para remodelar tu baño con RenovArqui?
Contacto inicial: Nos contás qué tenés en mente y te asesoramos sin compromiso.
Proyecto Preliminar: Relevamos y fotografiamos el baño al detalle. Te presentamos propuestas de diseño con planos y vistas 3D.
Presupuesto ajustado: Con el diseño definido, te damos un presupuesto cerrado y detallado.
Ejecución de obra: 3 semanas de obra con jefe de obra matriculado, reportes semanales y cero sorpresas.
Entrega y garantía: Revisamos juntos el resultado final y te entregamos tu baño nuevo.
Preguntas frecuentes sobre remodelación de baños en Buenos Aires (FAQ)
¿Cuánto cuesta remodelar un baño chico en CABA en 2026?
Un baño chico de aproximadamente 3 m² en Capital Federal tiene un costo de remodelación integral de entre $12.500.000 y $16.100.000 ARS + IVA (a febrero 2026), incluyendo diseño profesional, obra completa y terminaciones de gama premium. Este valor varía según las terminaciones elegidas.
¿Cuánto tiempo lleva hacer un baño a nuevo en Buenos Aires?
Una remodelación integral de baño en un departamento de CABA lleva aproximadamente 3 semanas. El plazo puede variar según la complejidad del diseño, el estado original del baño y la entrega de materiales fabricados a medida. Desconfiá de presupuestos que prometan plazos menores a 2 semanas para una refacción completa.
¿Qué incluye una remodelación integral de baño?
Una remodelación integral incluye demolición completa, recambio de instalaciones sanitarias y eléctricas, nuevo contrapiso, impermeabilización, colocación de revestimientos (porcelanatos), cielorraso, pintura, e instalación de todos los artefactos sanitarios y griferías. En nuestro caso, también incluye diseño personalizado y supervisión de obra profesional.
¿Se puede remodelar un baño sin romper todo?
Es posible hacer renovaciones parciales (cambiar griferías, pintar, cambiar accesorios) sin demoler. Sin embargo, si tu baño tiene más de 30 años, lo más recomendable es una remodelación integral para renovar cañerías e instalaciones eléctricas obsoletas. Reutilizar caños viejos puede generar problemas (y costos) mayores a corto plazo.
¿En qué barrios de Buenos Aires trabaja RenovArqui?
Trabajamos en toda la Capital Federal, con foco en Belgrano, Palermo, Recoleta, Retiro, Villa Urquiza, Villa Ortúzar, Caballito, Colegiales, Coghlan, Saavedra y Núñez. Si tu departamento está en otro barrio de CABA, consultá disponibilidad.
¿Querés saber cuánto costaría remodelar tu baño?
Los valores que compartimos en este artículo están basados en un diseño y alcance específico. Tu baño puede tener medidas, estado y necesidades diferentes. Para obtener un presupuesto ajustado a tus gustos y posibilidades, contactá a nuestro equipo y arranquemos con un Proyecto Preliminar: relevamos tu baño, te presentamos una propuesta de diseño y te damos un presupuesto sin compromiso.
Ver nuestras obras terminadas → En este artículo te mostramos un baño remodelado dentro de una remodelación integral.
Conocer nuestro proceso de remodelación → Te contamos en detalle cómo trabajamos nosotros.
Inspirate con ejemplos de baños modernos → Remodelación de baño


